Quadrilocale in vendita

Padova, Corso Milano - Centro
€ 270.000
4 locali 4 locali
178 Mq 178 Mq
2 bagni 2 bagni

Quadrilocale in vendita

Padova, Corso Milano - Centro

Descrizione annuncio

CENTRO STORICO - Corso Milano

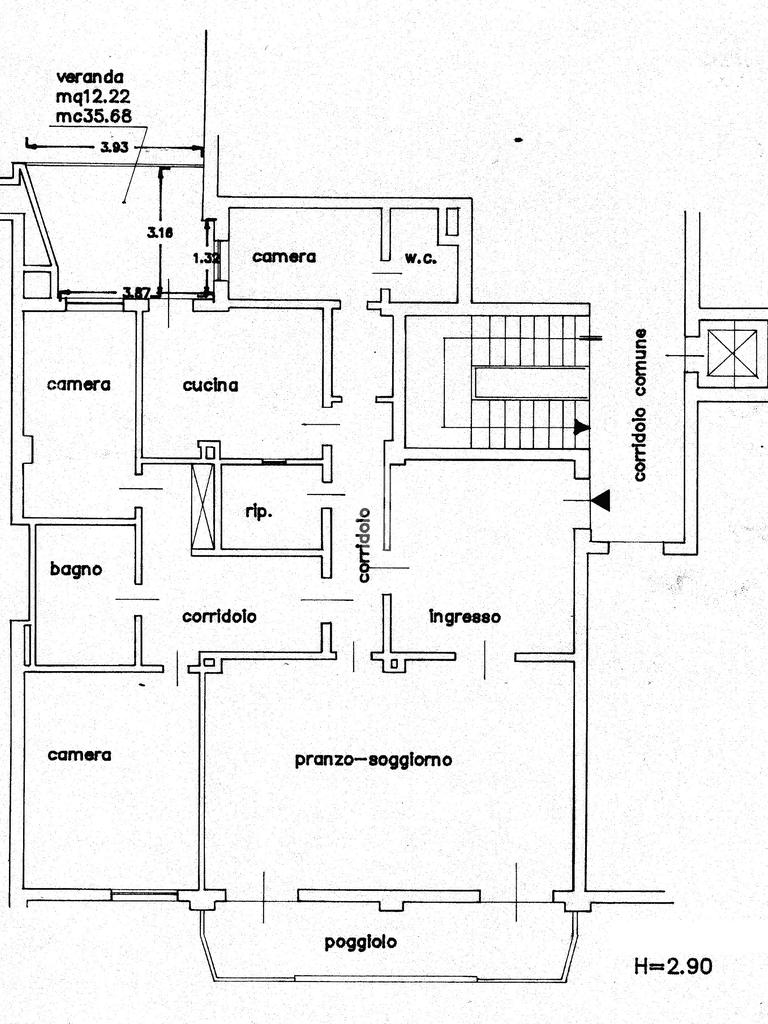
Centralissimo, proponiamo un ampio appartamento composto da quattro locali, tra cui un ampio e luminoso soggiorno con poggiolo, cucina abitabile con veranda, tre camere da letto, due bagni, ripostiglio e ingresso. L'immobile offre una spaziosa metratura che si presta a diverse soluzioni abitative, ideale per chi desidera personalizzare gli spazi secondo le proprie esigenze. Perfetto per famiglie in cerca di una residenza centrale o per chi intende fare un investimento in una zona di grande interesse. La proprietà include una cantina, utile per lo stoccaggio e la conservazione di oggetti personali. Inoltre, è possibile acquistare separatamente un garage, un'opportunità rara e preziosa nel contesto urbano. Questa soluzione abitativa rappresenta un'opportunità unica per chi desidera vivere o investire in una delle zone più vivaci e ben servite di Padova.

VENDI CASA? Un team di professionisti specializzati si occuperà di valutare gratuitamente il Vostro immobile e ne gestirà la vendita garantendovi il miglior risultato in termini di prezzo e tempistiche. Contattaci oggi al 351 513 7584 oppure scrivici: pdcc8

Mostra tutto

Nelle vicinanze

Trasporto pubblico Trasporto pubblico
Padova Campo Marte
Padova Campo Marte
1,2 Km
stazione di Padova
stazione di Padova
1,3 Km
Eremitani
Eremitani
860 m
Ponti Romani
Ponti Romani
910 m
Trasporto pubblico
60 m
Ricariche auto elettriche Ricariche auto elettriche
Palazzo Mantua Benavides
1,0 Km
DriWe Banca Etica
1,1 Km
APS Park Piazzale Boschetti
1,2 Km
Hotel M14
1,3 Km
Park Padova centro
1,3 Km
Scuole Scuole
Scuola Elementare "Cesarotti - Arria"
180 m
Liceo Scienze Umane - Economico Sociale Maria Ausiliatrice
360 m
British School
410 m
Palazzo Liviano
430 m
Scuola Elementare "Reggia Carrarese"
430 m
Farmacia Farmacia
Farmacia Tocchetto
50 m
Ai due Gigli
470 m
Farmacia ai Carmini
520 m
Farmacia Al Duomo
580 m
Bellato
580 m
Ospedali Ospedali
Villa Maria
590 m
Ospedale Militare di Padova
630 m
Centro di Foniatria - Casa di Curas Trieste
1,4 Km
Ospedale Giustinianeo
1,7 Km
Azienda Ospedaliera di Padova
1,8 Km
Supermercati Supermercati
NaturaSi
470 m
Pam
610 m
Despar
650 m
Supermarket Alì sotto il Salone
690 m
IN's
690 m
Negozi Negozi
Panificio San Leonardo
300 m
Eland
440 m
Atelier Maretti
450 m
Negozi
460 m
Piccolo Cucciolo
460 m
Bar Bar
Enoteca La Moscheta
110 m
Bar
320 m
Blu bar
370 m
Diego Bar
450 m
Il Baretto
490 m
Ristoranti Ristoranti
Trattoria San Pietro
180 m
Masa
260 m
Ristoranti
270 m
Cicheto
270 m
Trattoria Isoletta
300 m
Mostra tutto

Caratteristiche

Rif.:
61152312
Piano:
1 di 7 con ascensore (Piano basso)
Box:
1
Balconi:
1
Terrazzi:
1
Camere da letto:
3
Mostra tutto
Prezzo Prezzo
€ 270.000
Rata mutuo Rata mutuo
€ 1.272 / mese
Spese annue Spese annue
€ 5.000
Proponi il tuo prezzoProponi il tuo prezzo

Classe Energetica

G
G
G
G
G
G
G
G
G
EP globale non rinnovabile:
272.00 kW h/m² anno
EP globale rinnovabile:
0.00 kW h/m² anno
EP invernale del fabbricato:
EP estiva del fabbricato:
Anno di costruzione:
1967
Riscaldamento:
Centralizzato
Tipo impianto:
A radiatori
Tipo alimentazione:
Metano

Ti interessa visionare l'immobile?

Fissa un appuntamento  Fissa un appuntamento

Richiedi informazioni

Clicca su Leggi per aprire l'informativa
* Questi campi sono obbligatori

Calcola il tuo mutuo

Semplice e senza impegno
Anticipo

( % )
Mutuo

( % )

pochi semplici passi

inserisci i tuoi dati
Questionario completato
Grazie per aver richiesto un appuntamento senza impegno con un nostro Consulente del Credito e Assicurativo.

Hai inserito correttamente tutti i dati necessari e a breve riceverai una e-mail con un link da convalidare per inviare i tuoi dati.
Affiliato
XIII Srl
Largo Europa, 5 35137 Padova (PD)
Largo Europa, 5 35137 Padova (PD)
Zona: Padova Centro
Mostra su mappa
Orari: dal Lunedì al Venerdì 9:30 - 13:00 15:00 - 19:30 Sabato su appuntamento
Affiliato
XIII Srl
Largo Europa, 5 35137 Padova (PD)

2026 Tecnocasa Franchising S.p.A. - P. IVA 08365160152 - Via Monte Bianco 60/A 20089 Rozzano (MI). Ogni agenzia ha un proprio titolare ed è autonoma. Privacy policy | Policy utilizzo | Cookie policy